-
建筑面积暂无资料
-
总户数暂无资料
-
建筑年代2021年建
-
容积率暂无资料
-
物业费暂无资料
-
绿化率暂无资料
万科大都会万公馆 南
保真房源
捡漏房源
成熟商圈
精装修
室内设施
房源照片
1
2
3
4
5
6
7
8
查看更多图片
小区信息
万科大都会万公馆
周边配套
2300
元/月
小区名称
万科大都会万公馆
商铺行业
未知
地段
未知
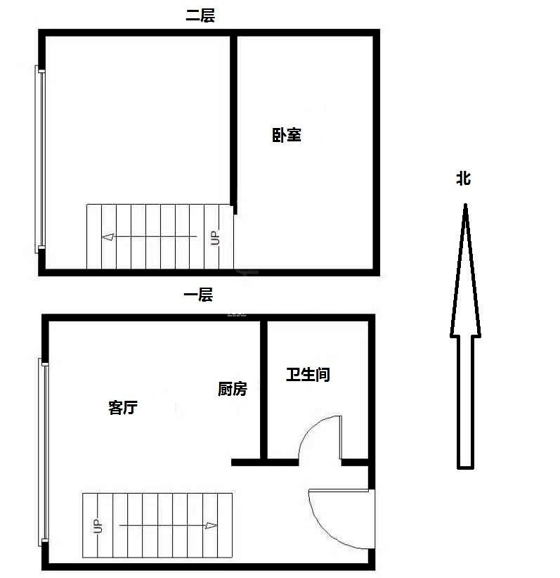
建筑面积
39㎡
进深
未知
层高
未知
宽度
未知
装修
精装修
位置
未知
楼层/总高
高楼层/共35层
付款方式
一次付清
挂牌时间
2025-12-07 11:09:01
详细地址
历下区山左路与安成街交汇处

