-
建筑面积11340
-
总户数1017
-
建筑年代2022年建
-
容积率5
-
物业费4.5
-
绿化率2.5
大华龙悦 西
保真房源
捡漏房源
成熟商圈
新上
精装修
室内设施
房源照片
1
2
3
4
5
6
7
8
9
查看更多图片
小区信息
大华龙悦
周边配套
2200
元/月
小区名称
大华龙悦
商铺行业
未知
地段
未知
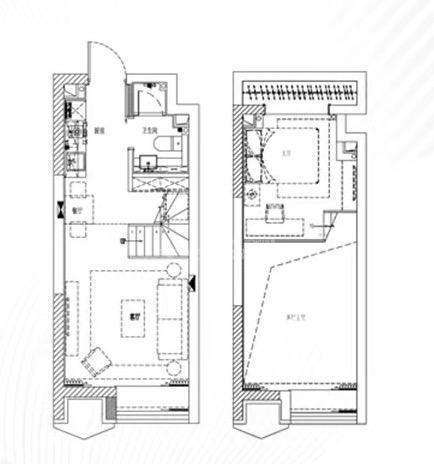
建筑面积
36㎡
进深
未知
层高
未知
宽度
未知
装修
精装修
位置
未知
楼层/总高
低楼层/共18层
付款方式
一次付清
挂牌时间
2025-12-06 14:00:07
详细地址
龙奥北路以南舜义路以西

