-
建筑面积400000
-
总户数168
-
建筑年代2009年建
-
容积率1.31
-
物业费0.35
-
绿化率40
河畔景苑 南
保真房源
捡漏房源
成熟商圈
简单装修
室内设施
房源照片
1
2
3
4
5
6
7
8
9
查看更多图片
小区信息
河畔景苑
周边配套
1500
元/月
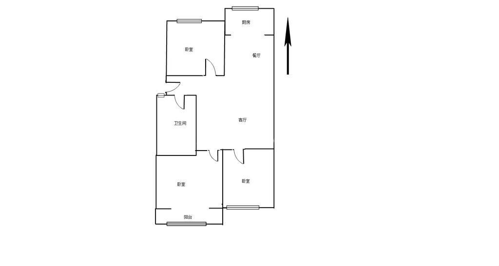
厅室3室2厅1卫1阳台
朝向南 建筑面积96㎡

