-
建筑面积84600
-
总户数728
-
建筑年代2009年建
-
容积率1.3
-
物业费1.30
-
绿化率40
三箭汇福山庄 南北
保真房源
捡漏房源
成熟商圈
精装修
室内设施
房源照片
2
3
4
5
6
7
8
9
10
11
12
13
14
15
16
查看更多图片
小区信息
三箭汇福山庄
周边配套
25000
元/月
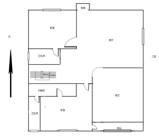
厅室5室2厅2卫2阳台
朝向南北 建筑面积322㎡

