-
建筑面积1000
-
总户数100
-
建筑年代2007年建
-
容积率1
-
物业费暂无资料
-
绿化率20
青龙小区 南
保真房源
捡漏房源
成熟商圈
精装修
室内设施
房源照片
1
2
3
4
5
6
7
8
9
10
11
12
13
14
查看更多图片
小区信息
青龙小区
周边配套
1500
元/月
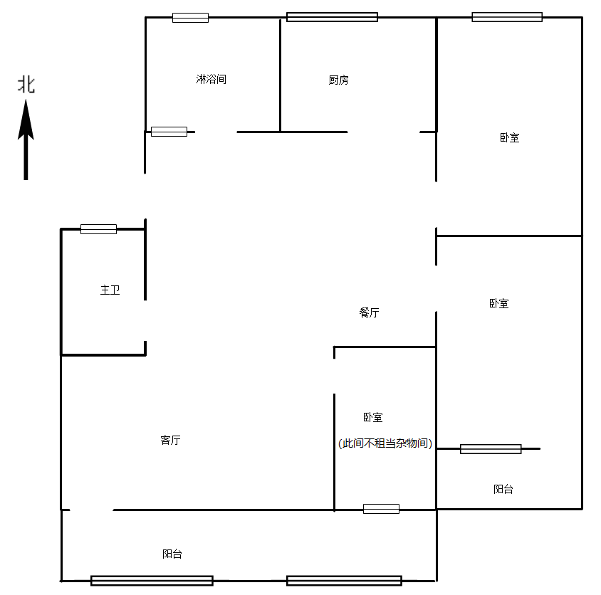
厅室3室2厅2卫2阳台
朝向南 建筑面积142.7㎡

