欧亚大观商都 南北
保真房源
捡漏房源
成熟商圈
精装修
室内设施
房源描述
1、位置优势:房屋位于学校附近,闹中取静,交通四通八达,生活方便,附近有超市,菜市场等;
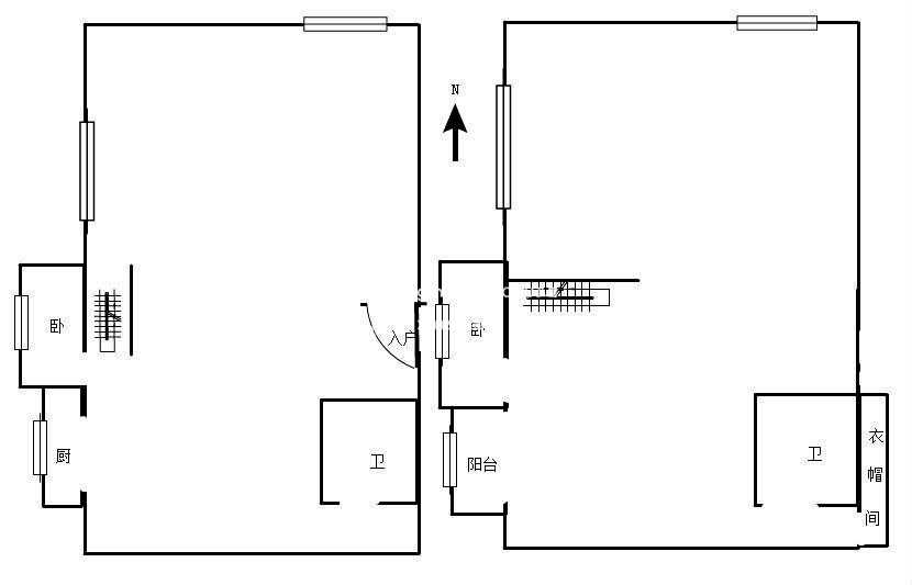
2、户型优势:南北卧室,客厅方正好用,单元对讲门,大院传达,安全性高!
3、房屋精装:人性化设计,房东诚心出租,价格可以再谈,欢迎随时看房。
2、户型优势:南北卧室,客厅方正好用,单元对讲门,大院传达,安全性高!
3、房屋精装:人性化设计,房东诚心出租,价格可以再谈,欢迎随时看房。
房源照片
1
2
3
4
5
6
7
8
9
10
11
查看更多图片
小区信息
欧亚大观商都
周边配套
4300
元/月
小区名称
欧亚大观商都
商铺行业
未知
地段
未知
建筑面积
85㎡
进深
未知
层高
未知
宽度
未知
装修
精装修
位置
未知
楼层/总高
中楼层/共20层
付款方式
一次付清
挂牌时间
2025-10-28 14:16:16
详细地址
阳光新路73号

