-
建筑面积暂无资料
-
总户数1393
-
建筑年代
-
容积率暂无资料
-
物业费1.5-.2.3
-
绿化率暂无资料
碧桂园莱蒙湖 南北
保真房源
捡漏房源
成熟商圈
豪装
室内设施
房源照片
2
3
4
5
6
7
8
9
10
11
12
13
14
15
16
17
18
19
20
21
查看更多图片
小区信息
碧桂园莱蒙湖
周边配套
6000
元/月
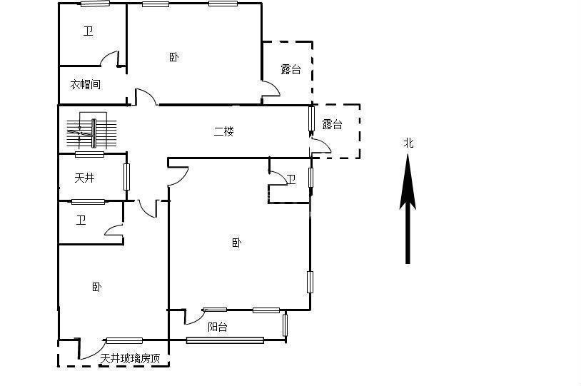
厅室6室4厅6卫2阳台
朝向南北 建筑面积387㎡

