郎茂山小区 南北
保真房源
捡漏房源
成熟商圈
简单装修
室内设施
房源描述
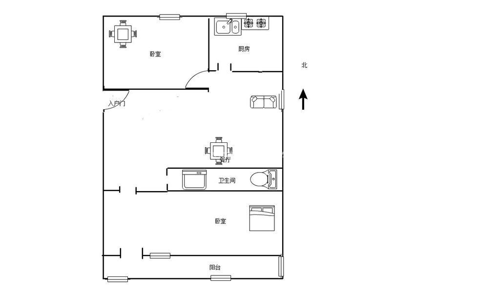
南北卧室,客厅方正好用,单元对讲门,大院传达,安全性高!
人性化设计,房东因置换房屋在东边买了新房,诚心出租,价格可以再谈,欢迎随时看房。
人性化设计,房东因置换房屋在东边买了新房,诚心出租,价格可以再谈,欢迎随时看房。
房源照片
1
2
3
4
5
6
7
8
9
10
11
查看更多图片
小区信息
郎茂山小区
周边配套
1400
元/月
厅室2室1厅1卫1阳台
朝向南北 建筑面积57.86㎡

