诚基中心 南北
保真房源
捡漏房源
成熟商圈
精装修
室内设施
房源描述
1、位置优势:房屋位于和平路商圈/山师学校附近,闹中取静,交通四通八达,生活方便,附近有大润发超市,农贸菜市场等;
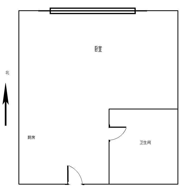
2、户型优势:一室一厅,南北卧室,客厅方正好用,单元对讲门,大院传达,安全性高!
3、房屋精装:人性化设计,房东因置换房屋在东边买了新房,诚心出租,价格可以再谈,欢迎随时看房。
2、户型优势:一室一厅,南北卧室,客厅方正好用,单元对讲门,大院传达,安全性高!
3、房屋精装:人性化设计,房东因置换房屋在东边买了新房,诚心出租,价格可以再谈,欢迎随时看房。
房源照片
1
2
3
4
5
6
7
查看更多图片
小区信息
诚基中心
周边配套
1600
元/月
厅室1室0厅1卫1阳台
朝向南北 建筑面积28㎡

