梁府小区二区 南北
保真房源
捡漏房源
成熟商圈
简单装修
室内设施
房源描述
核心卖点:,人车分流,24小时安保措施,高品位人士社区,绿化率高达60%;
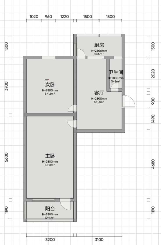
户型介绍:精装南北通透三室,超大阳台,视野宽阔,户型设计合理,动静分离;主卧面宽大,带飘窗,采光超棒;
主卧面宽大,带飘窗,采光超棒;
产权信息:产权明晰,随时看房;
户型介绍:精装南北通透三室,超大阳台,视野宽阔,户型设计合理,动静分离;主卧面宽大,带飘窗,采光超棒;
主卧面宽大,带飘窗,采光超棒;
产权信息:产权明晰,随时看房;
房源照片
1
2
3
4
5
6
7
8
9
10
11
查看更多图片
小区信息
梁府小区二区
周边配套
1700
元/月
厅室2室1厅1卫1阳台
朝向南北 建筑面积70㎡

